5 locali in vendita

Napoli, Via Onofrio Fragnito - Rione Alto
€ 450.000
5 locali 5 locali
145 Mq 145 Mq
2 bagni 2 bagni

5 locali in vendita

Napoli, Via Onofrio Fragnito - Rione Alto

Descrizione annuncio

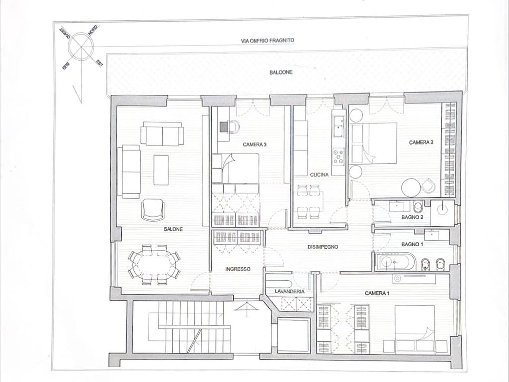
Si propone in vendita la nuda proprietà di un appartamento di rappresentanza, strategicamente posizionato in Via Fragnito, nel cuore del Rione Alto. L'usufruttuaria ha un'età di novantatré anni. L'immobile vanta una generosa superficie commerciale di 145 mq e si colloca al penultimo piano della scala principale (A) dello stabile. La consistenza interna è ottimamente distribuita: l'ingresso filtro conduce a un ampio salone doppio e ad un disimpegno che serve una cucina abitabile, tre spaziose camere da letto, doppi servizi e un comodo ripostiglio/lavanderia. Particolarmente pregevole è l'esposizione esterna, caratterizzata da una balconata fronte strada di ben15 metri lineari, ideale per godere di luminosità, irraggiamento e veduta. Completano l'aerazione e l'illuminazione, tre finestre che affacciano sul cortile interno e una finestra sull'ingresso condominiale. L'appartamento è dotato di riscaldamento autonomo e di climatizzazione parziale. Questa offerta rappresenta una solida opportunità di investimento a medio termine in una delle zone più richieste della città a pochi passi dalla metropolitana e dalla zona ospedaliera.

Mostra tutto

Nelle vicinanze

Trasporto pubblico Trasporto pubblico
Rione Alto
Rione Alto
90 m
Policlinico
Policlinico
530 m
Piave
Piave
2,3 Km
Soccavo
Soccavo
2,5 Km
Semmola - Ospedale Pascale
Semmola - Ospedale Pascale
180 m
Scuole Scuole
13° Circolo Didattico Maestro Ignazio di Loyola
400 m
Scuola Media Cesare Pavese
580 m
Liceo Scientifico Elio Vittorini
660 m
Suore Betlemiti
860 m
Liceo Scientifico Enrico De Nicola
870 m
Farmacia Farmacia
Farmacia Garrone
270 m
Farmacia al Policlinico
940 m
Municinò
940 m
Farmacia Orlandi
950 m
Farmacia Laterza
1,0 Km
Ospedali Ospedali
IRCCS Fondazione Pascale - Day Hospital
260 m
IRCCS Fondazione Pascale - Palazzina scientifica
300 m
IRCCS Fondazione Pascale - Degenze
320 m
ospedale Antonio Cardarelli
630 m
Azienda Ospedaliera Universitaria Federico II
1,1 Km
Supermercati Supermercati
Carrefour Express
80 m
Sole 365
140 m
Supermercati
930 m
Superò
940 m
Conad
1,0 Km
Negozi Negozi
Pasticceria Settembre
710 m
Alysa Borse e Accessori
1,1 Km
La Focaccia dal 1962
1,1 Km
Grieco
1,8 Km
Negozi
1,9 Km
Bar Bar
Bar Maria
1,5 Km
El bocadito
1,7 Km
Caffetteria Bernini
1,8 Km
Bar Michelangelo
1,8 Km
Doc Pub
1,9 Km
Ristoranti Ristoranti
La Brace
340 m
Il Cavallino d'Oro - Ristorante Pizzeria
560 m
Siani
960 m
Pizzeria Da Michele
1,0 Km
Rosticceria La Padella
1,2 Km
Mostra tutto

Caratteristiche

Rif.:
61129313
Piano:
6 di 7 con ascensore (Piano alto)
Balconi:
1
Camere da letto:
3
Arredamento:
Assente
Condizionamento:
Autonomo
Mostra tutto
Prezzo Prezzo
€ 450.000
Rata mutuo Rata mutuo
€ 2.120 / mese
Spese annue Spese annue
€ 0
Proponi il tuo prezzoProponi il tuo prezzo

Classe Energetica

F
F
F
F
F
F
F
F
F
EP globale non rinnovabile:
175.00 kW h/m² anno
EP globale rinnovabile:
175.00 kW h/m² anno
EP invernale del fabbricato:
EP estiva del fabbricato:
Anno di costruzione:
1968
Riscaldamento:
Autonomo
Tipo impianto:
A radiatori
Tipo alimentazione:
Metano

Ti interessa visionare l'immobile?

Fissa un appuntamento  Fissa un appuntamento

Richiedi informazioni

Clicca su Leggi per aprire l'informativa
* Questi campi sono obbligatori

Calcola il tuo mutuo

Semplice e senza impegno
Anticipo

( % )
Mutuo

( % )

pochi semplici passi

inserisci i tuoi dati
Questionario completato
Grazie per aver richiesto un appuntamento senza impegno con un nostro Consulente del Credito e Assicurativo.

Hai inserito correttamente tutti i dati necessari e a breve riceverai una e-mail con un link da convalidare per inviare i tuoi dati.
Affiliato
Suolo Case Srl
Via Sementini, 58/60 80131 Napoli (NA)

Il nostro staff


  • Ciro Balzano
    Affiliato

  • Luca Ala
    Responsabile

  • Anna Varriale
    Collaboratrice
Via Sementini, 58/60 80131 Napoli (NA)
Zona: Rione Alto
Mostra su mappa
Orari: dal Lunedì al Venerdì 9.00 alle 20.00, Sabato dalle 9.00 alle 18.00,
Affiliato
Suolo Case Srl
Via Sementini, 58/60 80131 Napoli (NA)

2026 Tecnocasa Franchising S.p.A. - P. IVA 08365160152 - Via Monte Bianco 60/A 20089 Rozzano (MI). Ogni agenzia ha un proprio titolare ed è autonoma. Privacy policy | Policy utilizzo | Cookie policy